Titel
1-kamer woning in het Drielandenhuis in Haarlem (Centraal Wonen)
Naam woongroep
Drielandenhuis
Huur of koop
huur
Huur of koop bedrag
570
Beschrijving prijs
De huurprijs is een inschatting - de uiteindelijke prijs wordt bepaald door de woningcorporatie. Huursubsidie is mogelijk. Naast de huur is er een contributie aan de woongemeenschap van (momenteel) €48 per jaar per volwassene.

De woning valt binnen de sociale huur. Er geldt daarom een inkomensgrens; zie website Rijksoverheid (bijvoorbeeld hier: https://www.rijksoverheid.nl/onderwerpen/woning-huren/stappenplan-woning-huren)

De woning komt beschikbaar vanaf mei 2026 (afhankelijk van werkzaamheden in de woning door de woningbouwvereniging).
Vrij vanaf
2026-05-01
Provincie
Noord-Holland
Stad
Haarlem
Ligging
Schalkwijk; buitenwijk ca 15 minuten fietsen naar centrum
Gemeenschappelijke ruimte(s)
Meerdere gezamenlijke ruimtes
Prive ruimte(s)
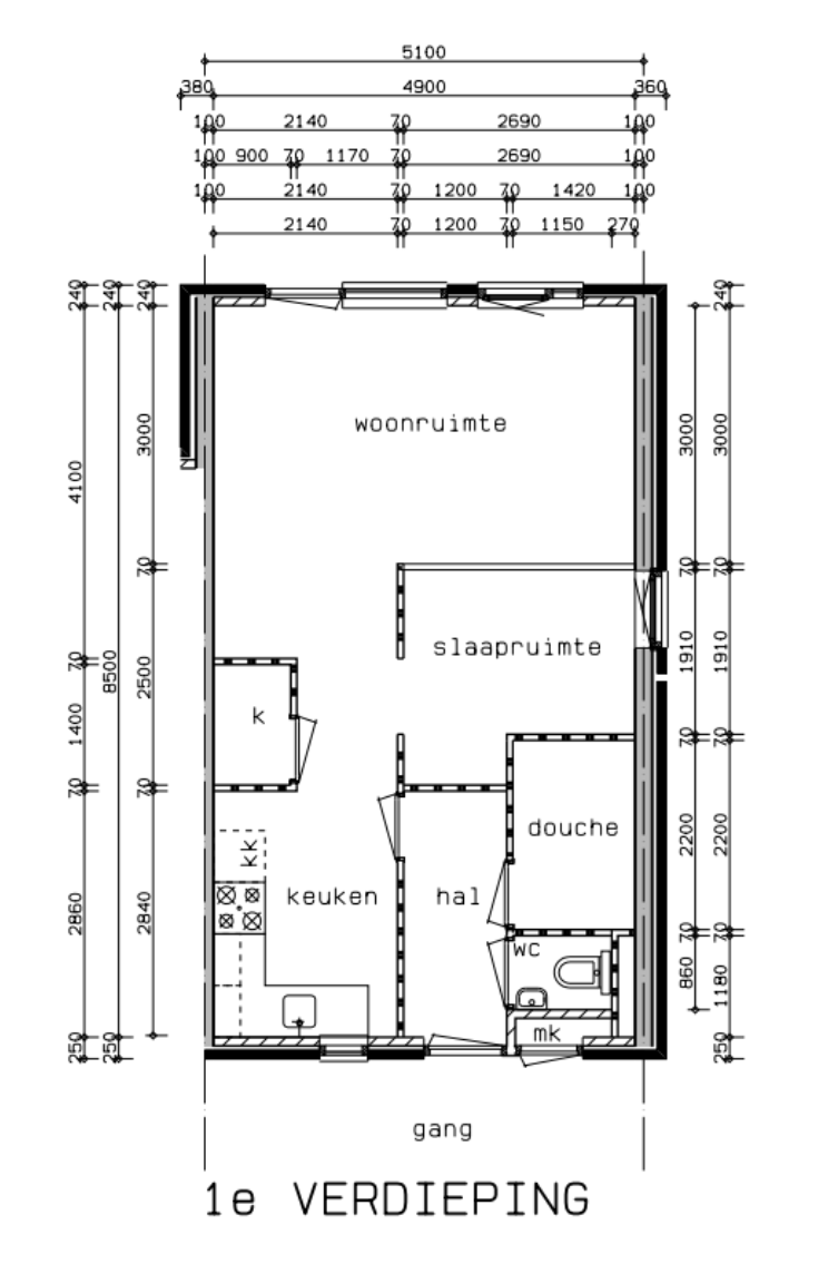
1-kamerwoning van ongeveer 40 m2 op de eerste verdieping (er is geen lift). Geschikt voor 1 persoon.
Beschrijving woongroep
In onze woongemeenschap komt een woning vrij! We zoeken daarom 1 volwassene (zonder inwonende kinderen) om bij ons te komen wonen.

Het Drielandenhuis maken we samen en daarom zoeken we naar mensen die een actieve bijdrage willen leveren en die hier tijd voor vrijmaken. Zo’n bijdrage kan in allerlei vormen en is natuurlijk afhankelijk van wat je kan, wat je wil, wat je interesse is en waar je blij van wordt. We zijn niet op zoek naar mensen die vanuit woningnood bij ons aankloppen bij gebrek aan alternatieven. We zoeken mensen die bewust kiezen voor het leven in de grotere gemeenschap – het Drielandenhuis.

Het Drielandenhuis is een prachtplek om te wonen, vlak bij het Spaarne en op fietsafstand van de duinen en de zee. In het Drielandenhuis vind je verschillende woningtypes. De gemeenschap is sterk verbonden, bestaande uit zo’n 60 mensen van jong tot oud. We treffen elkaar tenminste 4x per jaar bij een ledenraad en bij diverse gezamenlijke activiteiten binnen en buiten: op zaterdagen voor een kopje koffie of thee, op de gang, in de mooie besloten tuin, de gemeenschappelijke ruimten en op de evenementen die voor en door elkaar georganiseerd worden. En natuurlijk tijdens commissiewerk, het onderhuod van de tuin, klussen, schoonmaken – de dingen die nodig zijn om zo'n grote gemeenschap te doen groeien en bloeien. Nieuwe bewoners van het Drielandenhuis moeten ruimte en verlangen hebben om op den duur verantwoordelijkheden aan te gaan voor commissies en/of projecten binnen de gemeenschap. Dit geldt dus ook voor onze toekomstige huisgenoten. Meer informatie over het Drielandenhuis vind je op https://www.drielandenhuis.nl .

Voel je je geïnspireerd om bij ons te komen wonen? Schrijf dan een brief waarin je uitlegt wie je bent en wat je zou kunnen bijdragen aan de gemeenschap. Vertel ook over je huidige woonsituatie/geschiedenis en waarom je voor deze woonvorm wilt kiezen. Stuur je brief naar belangstellenden@drielandenhuis.nl

Naar aanleiding van je brief kun je worden uitgenodigd voor een koffieochtend op zaterdag 18 april om elkaar al wat beter te leren kennen en om te kijken of er een match is. Mochten alle partijen dan nog interesse hebben, dan volgt kort daarna nog een gesprek met een aantal van onze bewoners. In dit gesprek kijken we of de woning echt bij je past en of jij deze ook daadwerkelijk zou willen. De best passende kandidaat bij zowel woning als gemeenschap wordt onze nieuwe buur!
Huidige samenstelling
Zie hierboven
Gezochte personen
Een persoon, zonder inwonende kinderen.
Beelden
Website
http://www.drielandenhuis.nl
Contact informatie
Ben je enthousiast na het lezen van deze advertentie, dan ontvangen we graag jouw motivatiebrief uiterlijk zondag 5 april via belangstellenden@drielandenhuis.nl. Foto’s en video’s zijn ook welkom, grote bestanden graag via een link toesturen.
Geplaatst op
26 maart 2026 17:18
Vervalt op
24 juni 2026 17:18
Gezien
Deze advertentie is 367 keer bekeken
Geplaatst door
Symen Veenstra
reageer
registreer of meld aan om te reageren
Aanpassen
Alleen de plaatser van een advertentie kan hem veranderen. Registreer of meld aan als de eigenaar om aanpassingen te doen.